Beginnen Sie Ihr neues Leben in einem charmanten Einfamilienhaus mit c
Rotdornstraße 4
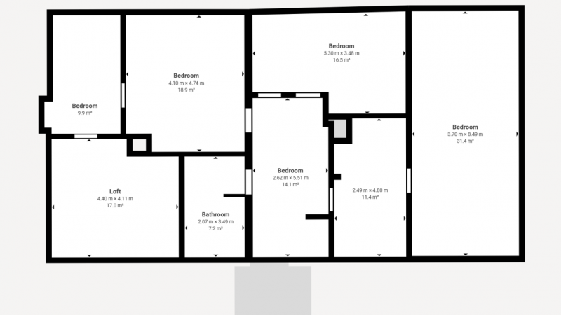
Willkommen in Ihrem neuen Zuhause! Dieses großzügige Einfamilienhaus bietet Ihnen auf 250 m² Wohnfläche und einem weitläufigen Grundstück von 645 m² ausreichend Platz für die ganze Familie. Mit insgesamt 10 Zimmern, darunter 6 Schlafzimmer, ist dieses Haus ideal für Familien, die viel Raum und individuelle Gestaltungsmöglichkeiten suchen.
**Highlights der Immobilie:**
– **Räumlichkeiten:** 10 Zimmer, davon 6 Schlafzimmer – perfekt für Kinder, Gäste oder ein Home-Office.
– **Bäder:** 2 Bäder sowie ein praktisches Gäste-WC sorgen für Komfort und Bequemlichkeit im Alltag.
– **Etagen:** Das Haus erstreckt sich über 2 Etagen, die Ihnen viel Gestaltungsspielraum bieten.
– **Modernisierung:** Die letzte Modernisierung fand 2020 statt, sodass bereits viele zeitgemäße Elemente vorhanden sind.
– **Zustand:** Das Haus ist renovierungsbedürftig und bietet Ihnen die Möglichkeit, Ihre eigenen Ideen und Wünsche umzusetzen.
– **Ausstattung:** Die Ausstattung ist normal, was Ihnen die Freiheit gibt, nach Ihren Vorstellungen zu gestalten.
– **Heizung:** Eine Gas-Heizung sorgt für wohlige Wärme in den kälteren Monaten.
**Außenbereich:**
Der großzügige Garten lädt zum Entspannen und Spielen ein. Hier können Sie Ihre persönlichen Gartenideen verwirklichen und eine Oase der Ruhe schaffen.
**Lage:**
Das Einfamilienhaus befindet sich in der ruhigen und familienfreundlichen Gemeinde Klüden. Die Umgebung bietet eine gute Anbindung an die Infrastruktur, Schulen und Einkaufsmöglichkeiten sind in der Nähe.
Nutzen Sie die Chance, dieses vielseitige Einfamilienhaus zu Ihrem neuen Zuhause zu machen! Vereinbaren Sie noch heute einen Besichtigungstermin und lassen Sie sich von den Möglichkeiten begeistern. Wir freuen uns auf Ihre Anfrage!
Spezifikationen
– Gas-Heizung (2010)
– Elektrik z.T. erneuert (2016)
– 2-fach isolierverglaste Kunststofffenster (2019)
– Hauseingangstür (2020)
Standort
Klüden, ein beschauliches Dorf in Sachsen-Anhalt, liegt idyllisch eingebettet in die sanften Hügel und Felder der Region. Die Ruhe und die natürliche Schönheit der Umgebung machen Klüden zu einem idealen Ort für alle, die dem hektischen Treiben der Stadt entfliehen möchten.
Das Dorf gehört zur Gemeinde Calvörde und ist etwa 9 Kilometer von dort entfernt. Calvörde selbst bietet alle Annehmlichkeiten des täglichen Bedarfs, darunter Geschäfte, Arztpraxen, eine Apotheke, eine Kindertagesstätte, eine Grundschule und eine Seniorenwohnanlage. Diese Einrichtungen sind für die Bewohner von Klüden leicht erreichbar und bieten eine gute Versorgung.
Die nächstgelegene größere Stadt ist Haldensleben, die mit weiteren Einkaufsmöglichkeiten, kulturellen Angeboten und Arbeitsmöglichkeiten aufwartet. Dennoch bleibt Klüden mit seiner ruhigen Atmosphäre und der Nähe zur Natur ein Ort, der vor allem für Menschen attraktiv ist, die ein entschleunigtes Leben abseits des Trubels suchen.
Weiteres
Haben wir Ihr Interesse geweckt? Dann freuen wir uns von Ihnen zu hören oder zu lesen. Gerne beantworten wir Ihre Fragen und vereinbaren einen Besichtigungstermin passend zu Ihrem Terminkalender.
Wir recherchieren gründlich und beraten auf Augenhöhe nach bestem Wissen und Gewissen. Wir weisen dennoch darauf hin, dass jede Immobilie ein Unikat mit unzähligen Merkmalen ist. Daher können wir nicht alles wissen. Wir scheuen aber keine Mühen es für Sie herauszufinden.
- Immobilientyp:
- Haus
- Kauf/Miete:
- zu verkaufen
- Größe:
- 250 m²
- Zimmer:
- 10
- Badezimmer:
- 6
- Schlafzimmer:
- 2
- Kaufpreis:
- € 119.000
- Grundstück:
- 645 m²
- Straße:
- Rotdornstraße 4
- Ort:
- 39638 Klüden
- Schlafzimmer:
- 2
- Badezimmer:
- 6
- Größe:
- 250 m²











